Dwupokojowe mieszkanie Osiedle Leśne– po remoncie Bydgoszcz, Osiedle Leśne

2 pokoje
49.87 m²
9 003,41 zł/m2
3 piętro
BPO-MS-2154
Oblicz ratę kredytu

449 000 zł

Dwupokojowe mieszkanie Osiedle Leśne– po remoncie
Nowa oferta

Szczegóły oferty

Symbol oferty BPO-MS-2154
Powierzchnia 49,87 m²
Powierzchnia użytkowa [m2] 49,87 m²
Liczba pokoi 2
Liczba sypialni 1
Rodzaj budynku blok
Technologia budowlana cegła
Opłaty w czynszu fundusz remontowy, ogrzewanie, woda, wywóz nieczystości
Opłaty wg liczników prąd, Woda ciepła
Piętro 3
Stan lokalu bardzo dobry
Mies. czynsz admin. 520 PLN
Okna aluminiowe
Instalacje dobre
Balkon jest
Liczba balkonów 1
Widok na inne budynki
Gaz tak - miejski
Woda tak - miejska
Dojazd asfalt
Otoczenie zabudowa mieszana
Ogrzewanie C.O. miejskie
Pomieszczenia
Powierzchnia pokoi 18,7m2,9,8m2 m2
Podłogi pokoi panele podłogowe
Typ kuchni oddzielna
Rodzaj kuchni oddzielna widna
Powierzchnia kuchni 7m2 m2
Podłoga kuchni gres
Typ łazienki razem z wc
Liczba łazienek 1
Podłoga łazienki gres
Wyposażenie łazienki kabina prysznicowa, pralka, umywalka
Liczba przedpokoi 1
Powierzchnia przedpokoi 4,7 m2
Podłoga przedpokoi panele podłogowe
Ewa Bonk

Ewa Bonk

doradca ds. nieruchomości

Napisz wiadomość 22 Ofert

Opis nieruchomości

Gotowe do wprowadzenia dwupokojowe mieszkanie na Osiedlu Leśnym przy  ul. Lelewela całkowicie

po remoncie, bez nakładów finansowych. 

 Mieszkanie dostępne od marca, idealne dla singla, pary lub małej rodziny.

Pełna infrastruktura miejska na wyciągnięcie ręki: markety, szkoły, przychodnie, restauracje, a obok tereny zielone, w tym Park Myślęcinek.

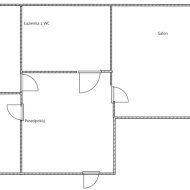
Szczegóły mieszkania (49,87 m², 3 piętro w budynku z cegły)
• Rozkładowy układ: salon z balkonem (ok. 18,7 m²),
-  sypialnia (ok. 9,8 m²),
 - osobna kuchnia (ok. 7 m²),
 - łazienka z WC (ok. 5 m²),
 - przedpokój z pojemnymi szafami na wymiar (ok. 4,7 m²).
• Wysokość pomieszczeń: 255 cm – komfortowe i przestronne.
• Okna PCV: ekspozycja wschód-zachód, dużo naturalnego światła.
• Ogrzewanie: sieć miejska; ciepła woda z bojlera (wymiana na miejską w 2027 r.).
Czynsz: ok. 520 zł (w tym fundusz remontowy).
• Dodatki: piwnica w cenie;
Zarządzane przez Spółdzielnię Budowlani.
To okazja na stabilną inwestycję – szybka transakcja z pełnym wsparciem agenta.
Zapraszam na prezentację Ewa Bonk 

 

Kalkulatory

Kalkulator kredytowy

Wysokość raty

PLN
%

Kalkulator kosztów

Podatek od czynności cywilno-prawnych

Taksa notarialna
(opłata notarialna)

Wniosek o wpis do WKW

VAT od prowizji
agencji nieruchomości

Vat od taksy notarialnej
(opłaty notarialnej)

Prowizja agencji nieruchomości

Wpisy aktu notarialnego

Razem

Uwaga: mogą wystąpić dodatkowe opłaty za założenie księgi wieczystej oraz ustanowienie hipoteki.

PLN
PLN
PLN
PLN
PLN
PLN
%
PLN

Podobne oferty

Mieszkanie Oś. Leśne, 11 Listopada, 3 pok. 50 m2

Bydgoszcz, Osiedle Leśne

3 pokoje 50 m2 7 280,00 zł/m2

Mieszkanie M3, 50 m2, blisko Myślęcinek, oś. Leśne

Bydgoszcz, Osiedle Leśne

2 pokoje 50 m2 6 700,00 zł/m2

Powstańców Warszawy, 2 pokoje, miejsce postojowe

Bydgoszcz, Osiedle Leśne

2 pokoje 49 m2 10 183,67 zł/m2

Mieszkanie 47 m² – Sułkowskiego 11, Osiedle Leśne

Bydgoszcz, Osiedle Leśne

2 pokoje 48 m2 7 296,68 zł/m2

doradca ds. nieruchomości

Proszę wprowadzić poprawne imię i nazwisko
Proszę wprowadzić poprawny numer telefonu
Proszę wprowadzić poprawny adres e-mail
Proszę zaznaczyć wymagane zgody
Rozwiąż równanie:
17 3
Niepoprawny wynik